Logo Atelier
Atelier Communication Visuelle
Plan d’aménagement du Volkswagen LT-46 L2H2 avec vues plongeantes, transversales et arrières Coupe longitudinale et vue en perspective de l’intérieur du camion Volkswagen LT-46 aménagé

Dernier projet

Aménagement complet d’un Volkswagen LT-46 L2H2 en fourgon habitable : plans, modélisation 3D.

Projet réalisé en collaboration avec Cérès Travaux & Rénovation .

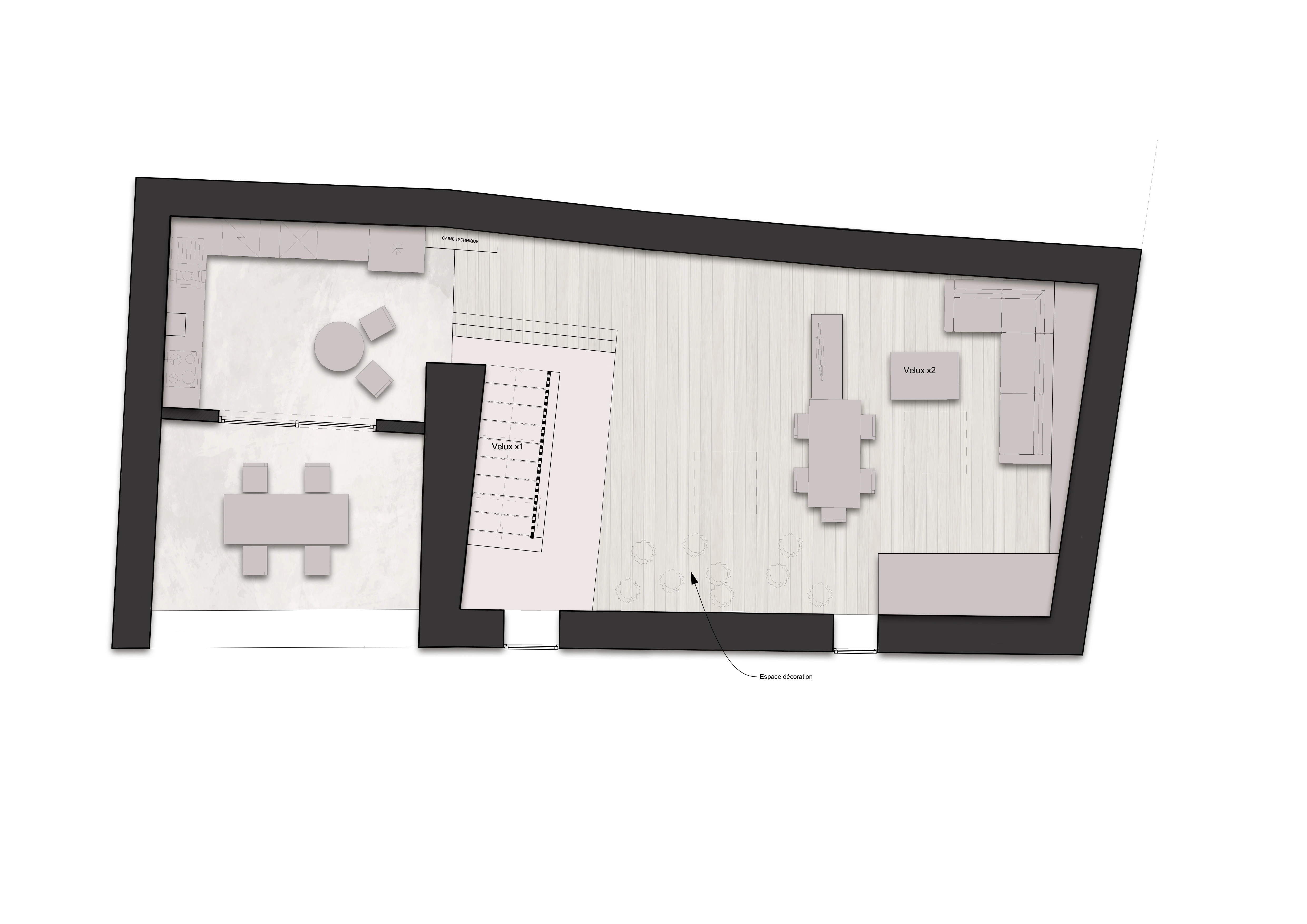
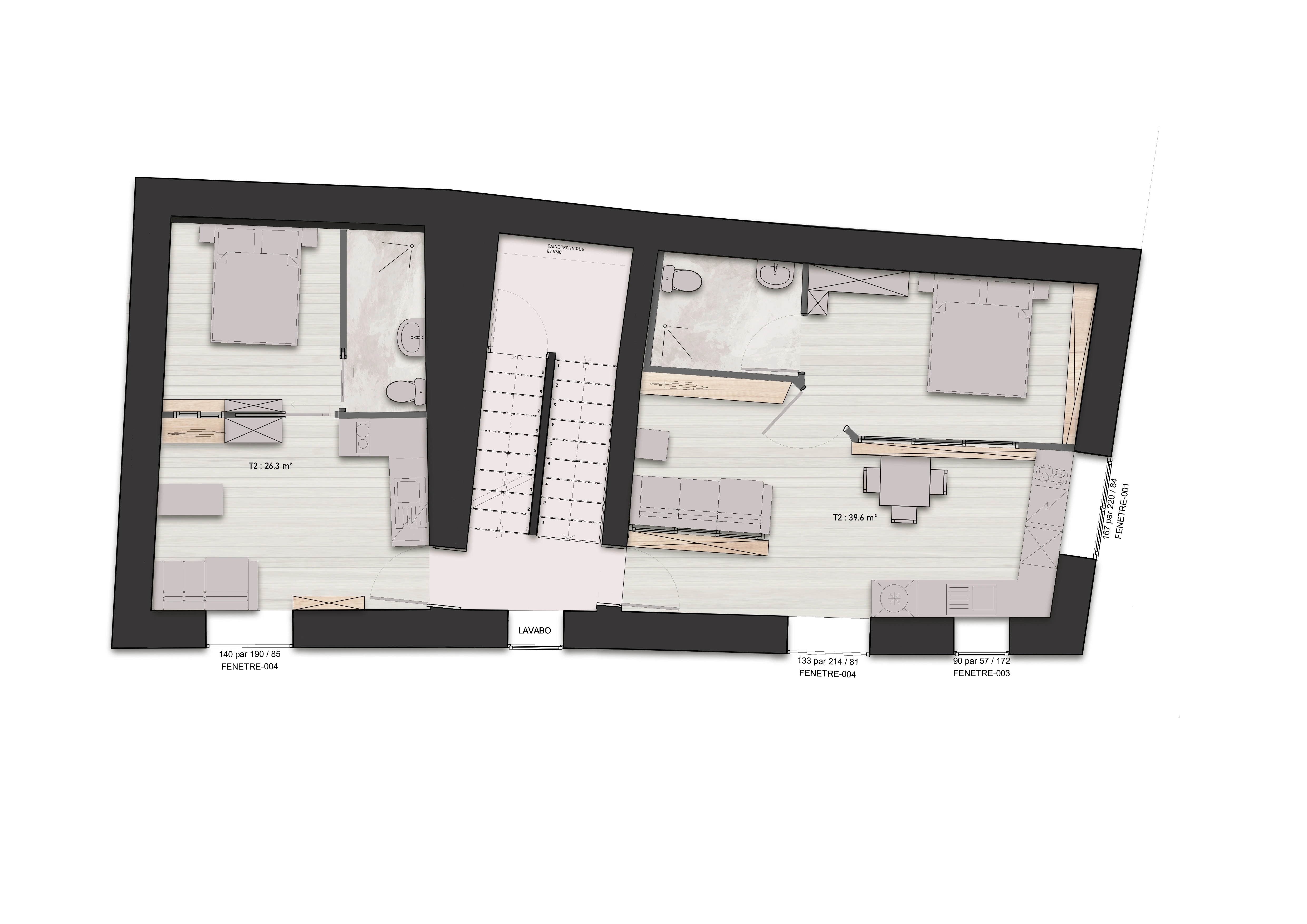
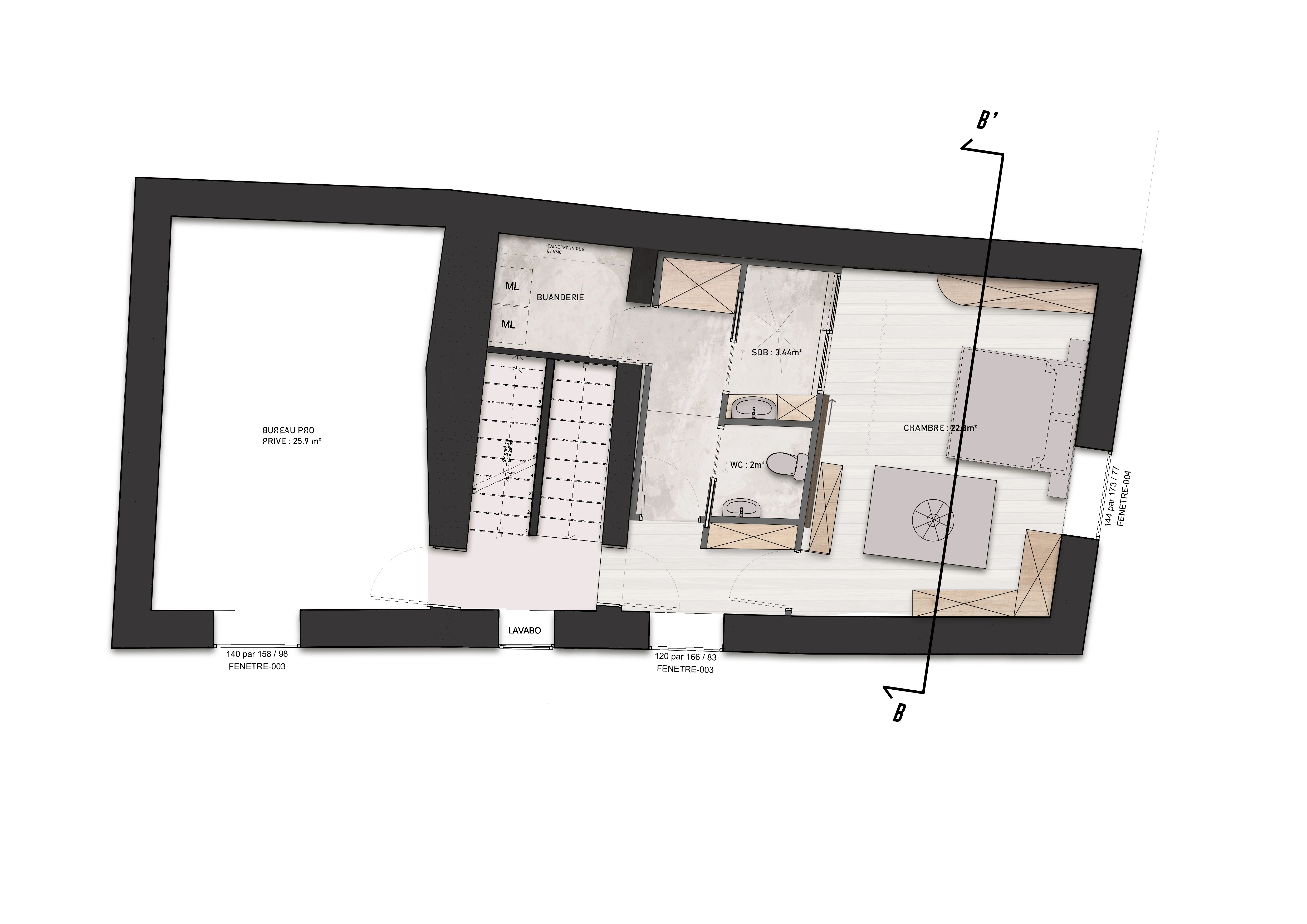
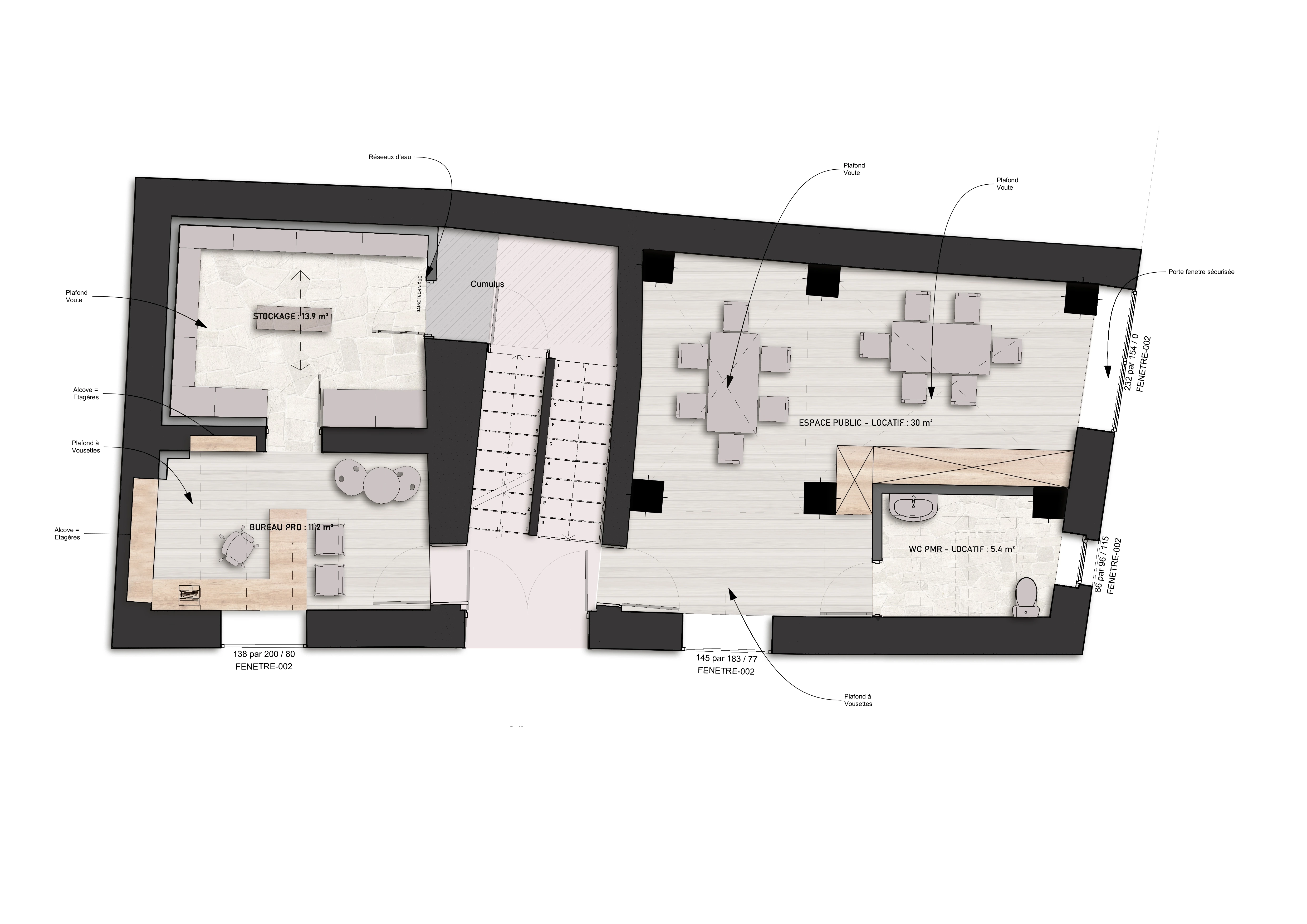
Réhabilitation Maison – Saint-Hippolyte-du-Fort

  • Maison ancienne R+3
  • Plans complets
  • Organisation intérieure

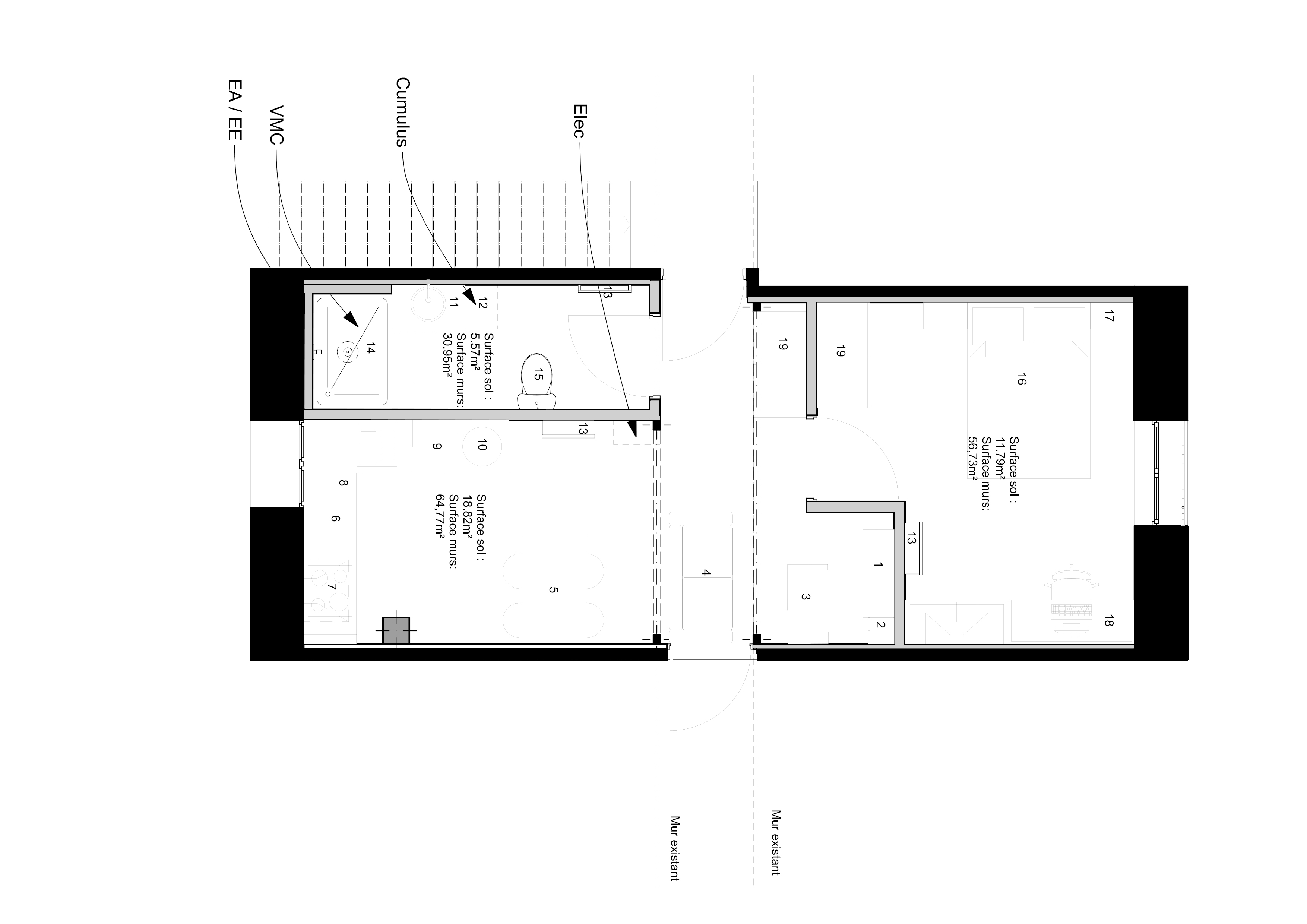
Aménagement Studio – Causse de la Selle

  • Conception intérieure
  • Studio compact & fonctionnel
  • Optimisation de l’espace